人気の条件食器洗浄機(食洗器)付き愛知県 名古屋市緑区賃貸物件一覧

賃貸物件(マンション・アパート)に食器洗浄機(食洗機)があれば、家事の負担を減らし、その分家族との時間を増やせます。子どもがいるファミリーさんにもおすすめです。

6件該当

並び順

  • 有松三丁山貸家

    15万 / 共益費等 -----

    保証金----- / 礼 金1ヶ月間取り 4LDK / 132.49入居日 2026年4月中旬

      P空き有

      保証人不要

      都市ガス

  • フロンティア・グリーンフォート

    618万 / 共益費等 -----

    敷 金2.00ヶ月 / 礼 金1.00ヶ月間取り 3SLDK / 95.69入居日 相 談

      角部屋

      都市ガス

  • ライオンズ南大高ディアグランデ

    49.5万 / 共益費等 -----

    敷 金2.00ヶ月 / 礼 金-----間取り 2LDK / 95.13入居日 相 談

      角部屋

      都市ガス

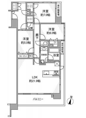
    518万 / 共益費等 -----

    敷 金2.00ヶ月 / 礼 金1.00ヶ月間取り 4LDK / 83.02入居日 2026年3月下旬

      P空き有

      都市ガス

  • ライキング鳴海

    17.3万 / 共益費等 5,000円

    保証金----- / 礼 金-----間取り 2DK / 50.63入居日 即 可

      360°パノラマ

      インターネット無料

      P空き有

      敷礼0

      角部屋

      保証人不要

  • シティコーポ有松駅前1005号室

    1014.8万 / 共益費等 家賃込

    保証金----- / 礼 金1.5ヶ月間取り 3LDK / 74.29入居日 即 可

      都市ガス

6件該当

TOP

人気のこだわり条件

人気の間取り

食器洗浄機(食洗器)付きの賃貸物件探しでよくある質問

Q食洗機付きの物件のメリットは何ですか?
A

自分で購入、設置する手間が要らないことです。食器洗いが好きではない方や、家事の時間を減らしたい方におすすめです。

Q食洗機のデメリットはありますか?
A

時間がかかること、掃除などのメンテナンスが必要なこと、音が大きいなどがありますが、賃貸物件で試しに使ってみたいという方には、食洗機付きの物件はおすすめです。

自分メモ