JavaScriptが無効になっています。 お手数ですが、ご覧いただくには、お使いのブラウザのオプションを変更し、JavaScriptを有効にしてからページを更新してください。
名古屋市、愛知県、岐阜県、三重県の貸店舗・貸事務所・テナント探しはニッショー
閉じる
1件該当
並び順
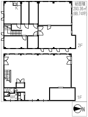
三重県四日市市城山町
近鉄名古屋線阿倉川駅歩9分
保証金105万円 償却----- 礼金38.5万円 駐車場家賃込
階数2階建/1階 面積317.20㎡(約95.95坪) 築年数築32年
詳細を見る