JavaScriptが無効になっています。 お手数ですが、ご覧いただくには、お使いのブラウザのオプションを変更し、JavaScriptを有効にしてからページを更新してください。
名古屋市、愛知県、岐阜県、三重県の貸店舗・貸事務所・テナント探しはニッショー
閉じる
1件該当
並び順
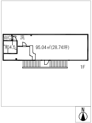
岐阜県養老郡養老町大場
養老鉄道養老線美濃津屋駅歩54分
保証金----- 償却----- 礼金8万円 駐車場家賃込
階数1階建/1階 面積95.04㎡(約28.74坪) 築年数築53年
詳細を見る