貸店舗事務所 弘光舎ビル
お気に入り登録
0人がお気に入り登録
| 賃料 共益費等 |
保証金/償却 権利金 |
最寄り駅 | 所在地 | 種別 | 面積 (坪数) |
築年数 | 引渡日 |
|---|---|---|---|---|---|---|---|
| 473,025円 家賃込 |
-----/----- ----- |
JR東海道本線大垣駅歩13分 近鉄バス大垣市役所停歩4分 |
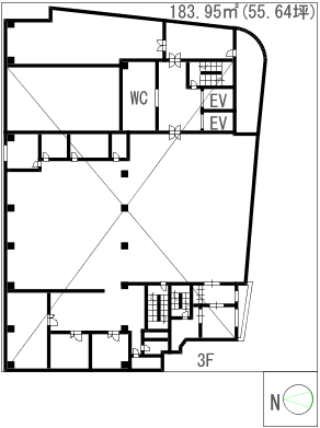
岐阜県大垣市神田町1丁目 | 貸店舗事務所 | 183.95㎡ (約55.64坪) |
築33年 | 即 可 |
賃料473,025円(共益費等 家賃込)
保証金----- 償却----- 権利金----- 駐車場敷地内(7,000円)
岐阜県大垣市神田町1丁目
JR東海道本線大垣駅歩13分/近鉄バス大垣市役所停歩4分
この物件のおすすめポイント
- 角地
- 大通り沿い
- 駐車場あり
物件情報
情報更新日 : 2026/02/07 ※次回更新は記載の「情報更新日」より8日以内に行います。
賃料等条件
-
賃料
473,025円 -
㎡・坪単価
約2571.4円/㎡ 約8501.5円/坪 -
共益費
家賃込 -
保証金/償却
-----/----- -
権利金
----- -
駐車場
敷地内(7,000円) -
その他条件
要お問い合わせ -
引渡日
即 可 -
備考
定期建物賃貸借:契約期間10年間
物件概要
-
種別
貸店舗事務所 -
面積(坪数)
183.95㎡(約55.64坪) -
構造/階数
鉄筋造 10階建/3階 -
築年
1993年(平成5年)1月 -
設備
エレベーター -
ガス
プロパンガスエリア -
用途地域
商業地域 -
取引形態
仲介 -
希望業種
各種店舗・事務所
- 物品販売
- 塾・教室関係
-
交通
JR東海道本線大垣駅歩13分/近鉄バス大垣市役所停歩4分 -
所在地
岐阜県大垣市神田町1丁目
※用途地域により業種に制限があります。事前に確認が必要です。
周辺環境
興文小学校240m
- この物件情報をメールで送る
- この物件情報をLINEで送る
-
スマホで物件情報を見る
物件番号・取り扱い支店
- 物件番号
- 8200671-007










