貸倉庫 御嵩町H様倉庫
お気に入り登録
0人がお気に入り登録
360°パノラマビュー
| 賃料 共益費等 |
保証金/償却 権利金 |
最寄り駅 | 所在地 | 種別 | 面積 (坪数) |
築年数 | 引渡日 |
|---|---|---|---|---|---|---|---|
| 16.5万円 ----- |
30万円/----- ----- |
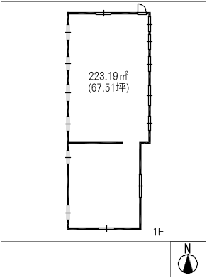
名鉄広見線御嵩口駅歩11分 | 岐阜県可児郡御嵩町中 | 貸倉庫 | 223.19㎡ (約67.51坪) |
築50年 | 即 可 |
賃料16.5万円(共益費等 -----)
保証金30万円 償却----- 権利金----- 駐車場敷地内(家賃込)
岐阜県可児郡御嵩町中
名鉄広見線御嵩口駅歩11分
この物件のおすすめポイント
- 一棟貸し ?
- 駐車場あり
物件情報
情報更新日 : 2025/12/07 ※次回更新は記載の「情報更新日」より8日以内に行います。
賃料等条件
-
賃料
16.5万円 -
㎡・坪単価
約739.2円/㎡ 約2444.0円/坪 -
共益費
----- -
保証金/償却
30万円/----- -
権利金
----- -
駐車場
敷地内(家賃込) -
その他条件
要お問い合わせ -
引渡日
即 可 -
備考
保証会社利用必須(初回保証料総賃料80%、更新料10,000円/年)
物件概要
-
種別
貸倉庫 -
面積(坪数)
223.19㎡(約67.51坪) -
構造/階数
鉄骨造 1階建/1階 -
築年
1975年(昭和50年)8月 -
設備
要お問い合わせ -
ガス
プロパンガスエリア -
用途地域
要お問い合わせ -
取引形態
仲介 -
希望業種
各種倉庫・工場
-
交通
名鉄広見線御嵩口駅歩11分 -
所在地
岐阜県可児郡御嵩町中
※用途地域により業種に制限があります。事前に確認が必要です。
- この物件情報をメールで送る
- この物件情報をLINEで送る
-
スマホで物件情報を見る
物件番号・取り扱い支店
- 物件番号
- 7702572-001












数少ない御嵩町の倉庫です♪
駐車場は4台込み。