貸店舗事務所 にかわ店舗
お気に入り登録
0人がお気に入り登録
| 賃料 共益費等 |
保証金/償却 権利金 |
最寄り駅 | 所在地 | 種別 | 面積 (坪数) |
築年数 | 引渡日 |
|---|---|---|---|---|---|---|---|
| 16.5万円 家賃込 |
45万円/16.5万円 ----- |
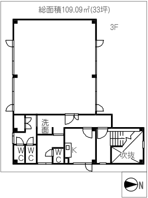
名鉄各務原線鵜沼宿駅歩10分 | 岐阜県各務原市鵜沼西町1丁目 | 貸店舗事務所 | 109.09㎡ (約33.00坪) |
築33年 | 相 談 |
賃料16.5万円(共益費等 家賃込)
保証金45万円 償却16.5万円 権利金----- 駐車場敷地内(家賃込)
岐阜県各務原市鵜沼西町1丁目
名鉄各務原線鵜沼宿駅歩10分
この物件のおすすめポイント
- 角地
- 駐車場あり
物件情報
情報更新日 : 2025/12/08 ※次回更新は記載の「情報更新日」より8日以内に行います。
賃料等条件
-
賃料
16.5万円 -
㎡・坪単価
約1512.5円/㎡ 約5000.0円/坪 -
共益費
家賃込 -
保証金/償却
45万円/16.5万円 -
権利金
----- -
駐車場
敷地内(家賃込) -
その他条件
水道料 3,000円/月 -
引渡日
相 談 -
備考
保証会社利用必須(初回保証料 総賃料の100%1年毎に総賃料の10%(最低保証料10,000円))
3年未満の退去の場合は保証金全額償却駐車場は軽専用
物件概要
-
種別
貸店舗事務所 -
面積(坪数)
109.09㎡(約33.00坪) -
構造/階数
鉄骨造 3階建/3階 -
築年
1992年(平成4年)10月 -
設備
要お問い合わせ -
ガス
なし -
用途地域
要お問い合わせ -
取引形態
仲介 -
希望業種
各種店舗・事務所
- 塾・教室関係
-
交通
名鉄各務原線鵜沼宿駅歩10分 -
所在地
岐阜県各務原市鵜沼西町1丁目
※用途地域により業種に制限があります。事前に確認が必要です。
- この物件情報をメールで送る
- この物件情報をLINEで送る
-
スマホで物件情報を見る
物件番号・取り扱い支店
- 物件番号
- 6800933-005
















商業施設が集まった人通りの多いエリア!
各種事務所や塾などにおすすめの物件です。