貸事務所 岐阜県各務原市那加門前町3丁目の物件情報
お気に入り登録
0人がお気に入り登録
| 賃料 共益費等 |
保証金/償却 権利金 |
最寄り駅 | 所在地 | 種別 | 面積 (坪数) |
築年数 | 引渡日 |
|---|---|---|---|---|---|---|---|
| 16.5万円 ----- |
45万円/----- ----- |
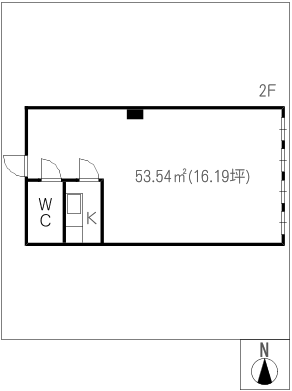
名鉄各務原線各務原市役所前駅歩4分 | 岐阜県各務原市那加門前町3丁目 | 貸事務所 | 53.54㎡ (約16.19坪) |
築37年 | 即 可 |
賃料16.5万円(共益費等 -----)
保証金45万円 償却----- 権利金----- 駐車場敷地内(6,600円)
岐阜県各務原市那加門前町3丁目
名鉄各務原線各務原市役所前駅歩4分
この物件のおすすめポイント
- 駐車場あり
物件情報
情報更新日 : 2025/12/08 ※次回更新は記載の「情報更新日」より8日以内に行います。
賃料等条件
-
賃料
16.5万円 -
㎡・坪単価
約3081.8円/㎡ 約10191.4円/坪 -
共益費
----- -
保証金/償却
45万円/----- -
権利金
----- -
駐車場
敷地内(6,600円) -
その他条件
要お問い合わせ -
引渡日
即 可 -
備考
物件概要
-
種別
貸事務所 -
面積(坪数)
53.54㎡(約16.19坪) -
構造/階数
鉄筋造 4階建/2階 -
築年
1988年(昭和63年)6月 -
設備
要お問い合わせ -
ガス
プロパンガスエリア -
用途地域
要お問い合わせ -
取引形態
仲介 -
希望業種
各種事務所
-
交通
名鉄各務原線各務原市役所前駅歩4分 -
所在地
岐阜県各務原市那加門前町3丁目
※用途地域により業種に制限があります。事前に確認が必要です。
周辺環境
那加第二小学校1,120m
- この物件情報をメールで送る
- この物件情報をLINEで送る
-
スマホで物件情報を見る
物件番号・取り扱い支店
- 物件番号
- 6800833-007







各務原市役所駅徒歩4分!
事務所仕様の綺麗な内装ですよ!