貸事務所 倉知テナントビル
お気に入り登録
0人がお気に入り登録
| 賃料 共益費等 |
保証金/償却 権利金 |
最寄り駅 | 所在地 | 種別 | 面積 (坪数) |
築年数 | 引渡日 |
|---|---|---|---|---|---|---|---|
| 11万円 11,000円 |
30万円/33万円 ----- |
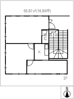
名鉄広見線日本ライン今渡駅歩15分 | 岐阜県可児市今渡 | 貸事務所 | 55.67㎡ (約16.84坪) |
築30年 | 即 可 |
賃料11万円(共益費等 11,000円)
保証金30万円 償却33万円 権利金----- 駐車場敷地内(家賃込)
岐阜県可児市今渡
名鉄広見線日本ライン今渡駅歩15分
この物件のおすすめポイント
- 大通り沿い
- 居抜き店舗 ?
- 駐車場あり
物件情報
情報更新日 : 2025/12/07 ※次回更新は記載の「情報更新日」より8日以内に行います。
賃料等条件
-
賃料
11万円 -
㎡・坪単価
約1975.9円/㎡ 約6532.0円/坪 -
共益費
11,000円 -
保証金/償却
30万円/33万円 -
権利金
----- -
駐車場
敷地内(家賃込) -
その他条件
駐車場共同 -
引渡日
即 可 -
備考
保証会社利用必須(初回保証料総賃料の100%、更新料11,000円/年)
駐車は23台(共同)、従業員の駐車は1台のみ可。保証会社の利用が契約条件となります。
物件概要
-
種別
貸事務所 -
面積(坪数)
55.67㎡(約16.84坪) -
構造/階数
鉄骨造 2階建/2階 -
築年
1995年(平成7年)10月 -
設備
要お問い合わせ -
ガス
プロパンガスエリア -
用途地域
要お問い合わせ -
取引形態
仲介 -
希望業種
要お問い合わせ
- 塾・教室関係
-
交通
名鉄広見線日本ライン今渡駅歩15分 -
所在地
岐阜県可児市今渡
※用途地域により業種に制限があります。事前に確認が必要です。
- この物件情報をメールで送る
- この物件情報をLINEで送る
-
スマホで物件情報を見る
物件番号・取り扱い支店
- 物件番号
- 5900094-002

















2階角の事務所仕様です。
角地のテナントの2階西側です。共用駐車場有り。そろばん塾跡です。従業員様の駐車は1台のみです。