貸事務所 緑区池上台二丁目事務所
お気に入り登録
0人がお気に入り登録
| 賃料 共益費等 |
保証金/償却 権利金 |
最寄り駅 | 所在地 | 種別 | 面積 (坪数) |
築年数 | 引渡日 |
|---|---|---|---|---|---|---|---|
| 9.9万円 家賃込 |
27万円/148,500円 ----- |
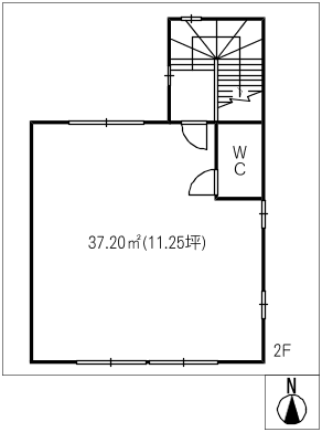
地下鉄桜通線鳴子北駅歩18分 | 愛知県名古屋市緑区池上台2丁目 | 貸事務所 | 37.20㎡ (約11.25坪) |
築25年 | 即 可 |
賃料9.9万円(共益費等 家賃込)
保証金27万円 償却148,500円 権利金----- 駐車場-----
愛知県名古屋市緑区池上台2丁目
地下鉄桜通線鳴子北駅歩18分
物件情報
情報更新日 : 2026/02/15 ※次回更新は記載の「情報更新日」より8日以内に行います。
賃料等条件
-
賃料
9.9万円 -
㎡・坪単価
約2661.2円/㎡ 約8800.0円/坪 -
共益費
家賃込 -
保証金/償却
27万円/148,500円 -
権利金
----- -
駐車場
----- -
その他条件
賃料に電気代込み -
引渡日
即 可 -
備考
物件概要
-
種別
貸事務所 -
面積(坪数)
37.20㎡(約11.25坪) -
構造/階数
木造 2階建/2階 -
築年
2000年(平成12年)9月 -
設備
要お問い合わせ -
ガス
なし -
用途地域
要お問い合わせ -
取引形態
仲介 -
希望業種
塾・教室関係
- 塾・教室関係
-
交通
地下鉄桜通線鳴子北駅歩18分 -
所在地
愛知県名古屋市緑区池上台2丁目
※用途地域により業種に制限があります。事前に確認が必要です。
- この物件情報をメールで送る
- この物件情報をLINEで送る
-
スマホで物件情報を見る
物件番号・取り扱い支店
- 物件番号
- 5301244-001





塾・教室関係でお探しの方におすすめです。
塾や教室関係でお探しの方におススメです。お問合せはニッショー徳重支店までお願いします。052-848-6470皆様からのお問合せをお待ちしております。