貸店舗事務所 ASAHI ESTATE BLD
お気に入り登録
0人がお気に入り登録
| 賃料 共益費等 |
敷金/償却 礼金 |
最寄り駅 | 所在地 | 種別 | 面積 (坪数) |
築年数 | 引渡日 |
|---|---|---|---|---|---|---|---|
| 235,950円 31,000円 |
707,850円/----- 235,950円 |
JR関西本線桑名駅歩4分 三岐鉄道北勢線西桑名駅歩4分 三交バス桑名シティホテル前停歩2分 |
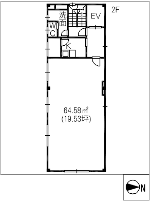
三重県桑名市中央町1丁目 | 貸店舗事務所 | 64.58㎡ (約19.53坪) |
築32年 | 即 可 |
賃料235,950円(共益費等 31,000円)
敷金707,850円 償却----- 礼金235,950円 駐車場敷地内(50,000円)
三重県桑名市中央町1丁目
JR関西本線桑名駅歩4分/三岐鉄道北勢線西桑名駅歩4分/三交バス桑名シティホテル前停歩2分
この物件のおすすめポイント
- 駐車場あり
物件情報
情報更新日 : 2025/12/09 ※次回更新は記載の「情報更新日」より8日以内に行います。
賃料等条件
-
賃料
235,950円 -
㎡・坪単価
約3653.6円/㎡ 約12081.4円/坪 -
共益費
31,000円 -
敷金/償却
707,850円/----- -
礼金
235,950円 -
駐車場
敷地内(50,000円) -
その他条件
要お問い合わせ -
引渡日
即 可 -
備考
建物駐車総台数:1台
物件概要
-
種別
貸店舗事務所 -
面積(坪数)
64.58㎡(約19.53坪) -
構造/階数
鉄骨造 5階建/2階 -
築年
1993年(平成5年)7月 -
設備
要お問い合わせ -
ガス
なし -
用途地域
商業地域 -
取引形態
仲介 -
希望業種
各種店舗・事務所
-
交通
JR関西本線桑名駅歩4分/三岐鉄道北勢線西桑名駅歩4分/三交バス桑名シティホテル前停歩2分 -
所在地
三重県桑名市中央町1丁目
※用途地域により業種に制限があります。事前に確認が必要です。
- この物件情報をメールで送る
- この物件情報をLINEで送る
-
スマホで物件情報を見る
物件番号・取り扱い支店
- 物件番号
- 5103653-002










