貸店舗事務所 HMビル
お気に入り登録
1人がお気に入り登録
| 賃料 共益費等 |
敷金/償却 権利金 |
最寄り駅 | 所在地 | 種別 | 面積 (坪数) |
築年数 | 引渡日 |
|---|---|---|---|---|---|---|---|
| 11万円 家賃込 |
30万円/----- ----- |
近鉄名古屋線桑名駅歩5分 近鉄名古屋線益生駅歩21分 |
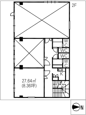
三重県桑名市末広町 | 貸店舗事務所 | 27.64㎡ (約8.36坪) |
築45年 | 即 可 |
賃料11万円(共益費等 家賃込)
敷金30万円 償却----- 権利金----- 駐車場敷地内(1台込)
三重県桑名市末広町
近鉄名古屋線桑名駅歩5分/近鉄名古屋線益生駅歩21分
この物件のおすすめポイント
- 駐車場あり
物件情報
情報更新日 : 2025/12/09 ※次回更新は記載の「情報更新日」より8日以内に行います。
賃料等条件
-
賃料
11万円 -
㎡・坪単価
約3979.7円/㎡ 約13157.8円/坪 -
共益費
家賃込 -
敷金/償却
30万円/----- -
権利金
----- -
駐車場
敷地内(1台込) -
その他条件
自治会費 400円/月 -
引渡日
即 可 -
備考
保証会社利用必須(初回保証料総賃料の80%、年間保証料総賃料の10%(上限3万円))
駐車場は1台分。
物件概要
-
種別
貸店舗事務所 -
面積(坪数)
27.64㎡(約8.36坪) -
構造/階数
鉄骨造 3階建/3階 -
築年
1980年(昭和55年)7月 -
設備
要お問い合わせ -
ガス
なし -
用途地域
商業地域 -
取引形態
仲介 -
希望業種
飲食店不可
-
交通
近鉄名古屋線桑名駅歩5分/近鉄名古屋線益生駅歩21分 -
所在地
三重県桑名市末広町
※用途地域により業種に制限があります。事前に確認が必要です。
周辺環境
精義小学校480m / 光風中学校800m
- この物件情報をメールで送る
- この物件情報をLINEで送る
-
スマホで物件情報を見る
物件番号・取り扱い支店
- 物件番号
- 5103545-004










桑名駅徒歩圏内!国道1号線沿い!