貸倉庫 本庄貸倉庫
お気に入り登録
0人がお気に入り登録
360°パノラマビュー
| 賃料 共益費等 |
保証金/償却 権利金 |
最寄り駅 | 所在地 | 種別 | 面積 (坪数) |
築年数 | 引渡日 |
|---|---|---|---|---|---|---|---|
| 40.7万円 ----- |
122.1万円/40.7万円 ----- |
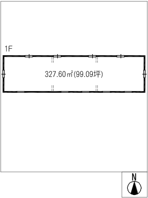
名鉄小牧線味岡駅歩29分 | 愛知県小牧市大字本庄 | 貸倉庫 | 327.60㎡ (約99.09坪) |
築35年 | 相 談 |
賃料40.7万円(共益費等 -----)
保証金122.1万円 償却40.7万円 権利金----- 駐車場敷地内(家賃込)
愛知県小牧市大字本庄
名鉄小牧線味岡駅歩29分
この物件のおすすめポイント
- 駐車場あり
物件情報
情報更新日 : 2025/12/09 ※次回更新は記載の「情報更新日」より8日以内に行います。
賃料等条件
-
賃料
40.7万円 -
㎡・坪単価
約1242.3円/㎡ 約4107.3円/坪 -
共益費
----- -
保証金/償却
122.1万円/40.7万円 -
権利金
----- -
駐車場
敷地内(家賃込) -
その他条件
月額保証料 10,175円/月
振替手数料 330円/月 -
引渡日
相 談 -
備考
保証会社利用可(初回総賃料:月額総賃料の80%、月額保証料:月額総賃料の2.5%、集送金手数料330円(税込))
物件概要
-
種別
貸倉庫 -
面積(坪数)
327.60㎡(約99.09坪) -
構造/階数
軽量鉄骨造 1階建/1階 -
築年
1990年(平成2年)8月 -
設備
要お問い合わせ -
ガス
なし -
用途地域
工業地域 -
取引形態
仲介 -
希望業種
各種倉庫
-
交通
名鉄小牧線味岡駅歩29分 -
所在地
愛知県小牧市大字本庄
※用途地域により業種に制限があります。事前に確認が必要です。
- この物件情報をメールで送る
- この物件情報をLINEで送る
-
スマホで物件情報を見る
物件番号・取り扱い支店
- 物件番号
- 4503242-001













小牧市本状 工業地域内♪駐車スペース有♪
建物 99.09坪倉庫♪敷地 295坪♪