貸店舗事務所 ST-6
お気に入り登録
0人がお気に入り登録
| 賃料 共益費等 |
保証金/償却 権利金 |
最寄り駅 | 所在地 | 種別 | 面積 (坪数) |
築年数 | 引渡日 |
|---|---|---|---|---|---|---|---|
| 16.5万円 8,250円 |
90万円/----- ----- |
名鉄河和線住吉町駅歩2分 名鉄河和線知多半田駅歩12分 |
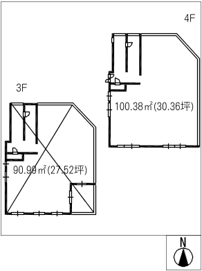
愛知県半田市出口町1丁目 | 貸店舗事務所 | 100.38㎡ (約30.36坪) |
築45年 | 相 談 |
賃料16.5万円(共益費等 8,250円)
保証金90万円 償却----- 権利金----- 駐車場-----
愛知県半田市出口町1丁目
名鉄河和線住吉町駅歩2分/名鉄河和線知多半田駅歩12分
この物件のおすすめポイント
- ビルイン店舗 ?
物件情報
情報更新日 : 2026/02/08 ※次回更新は記載の「情報更新日」より8日以内に行います。
賃料等条件
-
賃料
16.5万円 -
㎡・坪単価
約1643.7円/㎡ 約5434.7円/坪 -
共益費
8,250円 -
保証金/償却
90万円/----- -
権利金
----- -
駐車場
----- -
その他条件
月額保証料 1,386円/月 -
引渡日
相 談 -
備考
保証会社利用必須(初回保証料総賃料の100%、継続保証料総賃料の0.8%/年)
物件概要
-
種別
貸店舗事務所 -
面積(坪数)
100.38㎡(約30.36坪) -
構造/階数
鉄筋造 5階建/4階 -
築年
1980年(昭和55年)12月 -
設備
要お問い合わせ -
ガス
なし -
用途地域
近隣商業地域 -
取引形態
仲介 -
希望業種
各種店舗・事務所(飲食店は軽食のみ可)
-
交通
名鉄河和線住吉町駅歩2分/名鉄河和線知多半田駅歩12分 -
所在地
愛知県半田市出口町1丁目
※用途地域により業種に制限があります。事前に確認が必要です。
- この物件情報をメールで送る
- この物件情報をLINEで送る
-
スマホで物件情報を見る
物件番号・取り扱い支店
- 物件番号
- 4002780-002













官公庁周辺の最寄り駅が住吉町駅です。
好立地ですので、ビジネスチャンスが広がります。スケルトンで、好きなレイアウトができます。