貸事務所 センチュリービル 貸事務所
お気に入り登録
0人がお気に入り登録
| 賃料 共益費等 |
保証金/償却 権利金 |
最寄り駅 | 所在地 | 種別 | 面積 (坪数) |
築年数 | 引渡日 |
|---|---|---|---|---|---|---|---|
| 338,800円 36,300円 |
92.4万円/1,016,400円 ----- |
名鉄河和線知多半田駅歩3分 JR武豊線半田駅歩6分 名鉄河和線住吉町駅歩14分 |
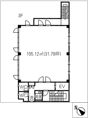
愛知県半田市広小路町 | 貸事務所 | 105.31㎡ (約31.85坪) |
築17年 | 即 可 |
賃料338,800円(共益費等 36,300円)
保証金92.4万円 償却1,016,400円 権利金----- 駐車場敷地内(10,890円)
愛知県半田市広小路町
名鉄河和線知多半田駅歩3分/JR武豊線半田駅歩6分/名鉄河和線住吉町駅歩14分
この物件のおすすめポイント
- 駐車場あり
物件情報
情報更新日 : 2025/12/08 ※次回更新は記載の「情報更新日」より8日以内に行います。
賃料等条件
-
賃料
338,800円 -
㎡・坪単価
約3217.1円/㎡ 約10637.3円/坪 -
共益費
36,300円 -
保証金/償却
92.4万円/1,016,400円 -
権利金
----- -
駐車場
敷地内(10,890円) -
その他条件
振替手数料 550円/月 -
引渡日
即 可 -
備考
駐車は近隣で6台分可能
物件概要
-
種別
貸事務所 -
面積(坪数)
105.31㎡(約31.85坪) -
構造/階数
鉄筋造 7階建/3階 -
築年
2008年(平成20年)2月 -
設備
要お問い合わせ -
ガス
なし -
用途地域
要お問い合わせ -
取引形態
仲介 -
希望業種
各種事務所
-
交通
名鉄河和線知多半田駅歩3分/JR武豊線半田駅歩6分/名鉄河和線住吉町駅歩14分 -
所在地
愛知県半田市広小路町
※用途地域により業種に制限があります。事前に確認が必要です。
- この物件情報をメールで送る
- この物件情報をLINEで送る
-
スマホで物件情報を見る
物件番号・取り扱い支店
- 物件番号
- 4001867-002





















◆名鉄知多半田駅前の好立地!
◆JR半田駅も近く便利です