貸事務所 愛知県知多郡武豊町字長尾山の物件情報 ニッショー限定物件
お気に入り登録
0人がお気に入り登録
360°パノラマビュー
| 賃料 共益費等 |
保証金/償却 権利金 |
最寄り駅 | 所在地 | 種別 | 面積 (坪数) |
築年数 | 引渡日 |
|---|---|---|---|---|---|---|---|
| 17.6万円 11,000円 |
50万円/33万円 ----- |
名鉄河和線知多武豊駅歩2分 JR武豊線武豊駅歩8分 |
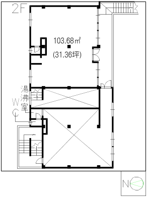
愛知県知多郡武豊町字長尾山 | 貸事務所 | 103.68㎡ (約31.36坪) |
築45年 | 即 可 |
賃料17.6万円(共益費等 11,000円)
保証金50万円 償却33万円 権利金----- 駐車場敷地内(5,500円)
愛知県知多郡武豊町字長尾山
名鉄河和線知多武豊駅歩2分/JR武豊線武豊駅歩8分
この物件のおすすめポイント
- スケルトン ?
- 駐車場あり
物件情報
情報更新日 : 2025/12/09 ※次回更新は記載の「情報更新日」より8日以内に行います。
賃料等条件
-
賃料
17.6万円 -
㎡・坪単価
約1697.5円/㎡ 約5612.2円/坪 -
共益費
11,000円 -
保証金/償却
50万円/33万円 -
権利金
----- -
駐車場
敷地内(5,500円) -
その他条件
要お問い合わせ -
引渡日
即 可 -
備考
保証会社利用必須(初回保証料は月額総賃料の100%、以後1年毎に月額総賃料の10%。)
スケルトン家賃保証委託契約が必要です。
物件概要
-
種別
貸事務所 -
面積(坪数)
103.68㎡(約31.36坪) -
構造/階数
鉄筋造 3階建/2階 -
築年
1980年(昭和55年)12月 -
設備
要お問い合わせ -
ガス
都市ガスエリア -
用途地域
近隣商業地域 -
取引形態
仲介 -
希望業種
各種事務所
- 物品販売
- 軽飲食
- 美容・健康・介護関係
-
交通
名鉄河和線知多武豊駅歩2分/JR武豊線武豊駅歩8分 -
所在地
愛知県知多郡武豊町字長尾山
※用途地域により業種に制限があります。事前に確認が必要です。
周辺環境
西保育園480m / 武豊小学校640m / 武豊中学校320m / 武豊町役場80m / 三菱UFJ銀行160m / おどり内科160m / TAK21320m / MEGAドンキホーテUNY400m
- この物件情報をメールで送る
- この物件情報をLINEで送る
-
スマホで物件情報を見る
物件番号・取り扱い支店
- 物件番号
- 4001071-003

名鉄知多武豊駅そばの好立地。
内装を自由にレイアウトできるスケルトン。南面の窓が大きく、明るい店内にできます。各種物販もお考え頂ける場所です。