貸店舗事務所 愛知県豊田市京町3丁目の物件情報
お気に入り登録
0人がお気に入り登録
| 賃料 共益費等 |
保証金/償却 礼金 |
最寄り駅 | 所在地 | 種別 | 面積 (坪数) |
築年数 | 引渡日 |
|---|---|---|---|---|---|---|---|
| 66万円 家賃込 |
140万円/----- 3.5万円 |
愛知環状鉄道愛環梅坪駅歩12分 名鉄三河線梅坪駅歩18分 名鉄豊田線上豊田駅歩19分 |
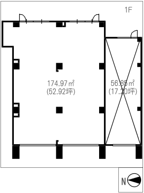
愛知県豊田市京町3丁目 | 貸店舗事務所 | 174.97㎡ (約52.92坪) |
築23年 | 相 談 |
賃料66万円(共益費等 家賃込)
保証金140万円 償却----- 礼金3.5万円 駐車場敷地内(5,500円)
愛知県豊田市京町3丁目
愛知環状鉄道愛環梅坪駅歩12分/名鉄三河線梅坪駅歩18分/名鉄豊田線上豊田駅歩19分
この物件のおすすめポイント
- 駐車場あり
物件情報
情報更新日 : 2025/12/07 ※次回更新は記載の「情報更新日」より8日以内に行います。
賃料等条件
-
賃料
66万円 -
㎡・坪単価
約3772.0円/㎡ 約12471.6円/坪 -
共益費
家賃込 -
保証金/償却
140万円/----- -
礼金
3.5万円 -
駐車場
敷地内(5,500円) -
その他条件
要お問い合わせ -
引渡日
相 談 -
備考
保証会社利用必須(初回保証料:総賃料の100%、年間保証料:総賃料の10%)
飲食店での利用の場合は保証金2,800,000円間取は現状優先
物件概要
-
種別
貸店舗事務所 -
面積(坪数)
174.97㎡(約52.92坪) -
構造/階数
鉄筋造 6階建/1階 -
築年
2002年(平成14年)4月 -
設備
要お問い合わせ -
ガス
都市ガスエリア -
用途地域
要お問い合わせ -
取引形態
仲介 -
希望業種
各種店舗・事務所(水商売不可、喫茶店可)
-
交通
愛知環状鉄道愛環梅坪駅歩12分/名鉄三河線梅坪駅歩18分/名鉄豊田線上豊田駅歩19分 -
所在地
愛知県豊田市京町3丁目
※用途地域により業種に制限があります。事前に確認が必要です。
周辺環境
梅坪保育園960m / 梅坪小学校960m / 梅坪台中学校1,280m / 豊田地域医療センター1,920m / やまのぶ800m / 名鉄バス上原停80m
- この物件情報をメールで送る
- この物件情報をLINEで送る
-
スマホで物件情報を見る
物件番号・取り扱い支店
- 物件番号
- 3701451-006

















愛環梅坪駅徒歩圏内の広々店舗
駐車場最大7台契約可