貸店舗事務所 STプラザ御器所
お気に入り登録
0人がお気に入り登録
360°パノラマビュー
| 賃料 共益費等 |
敷金/償却 権利金 |
最寄り駅 | 所在地 | 種別 | 面積 (坪数) |
築年数 | 引渡日 |
|---|---|---|---|---|---|---|---|
| 18.7万円 ----- |
34万円/----- ----- |
地下鉄鶴舞線御器所駅歩2分 地下鉄鶴舞線川名駅歩13分 地下鉄鶴舞線荒畑駅歩12分 |
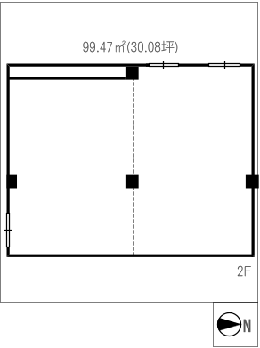
愛知県名古屋市昭和区御器所通3丁目 | 貸店舗事務所 | 99.47㎡ (約30.08坪) |
築37年 | 相 談 |
賃料18.7万円(共益費等 -----)
敷金34万円 償却----- 権利金----- 駐車場敷地内(18,700円)
愛知県名古屋市昭和区御器所通3丁目
地下鉄鶴舞線御器所駅歩2分/地下鉄鶴舞線川名駅歩13分/地下鉄鶴舞線荒畑駅歩12分
この物件のおすすめポイント
- 大通り沿い
- 駐車場あり
物件情報
情報更新日 : 2026/02/06 ※次回更新は記載の「情報更新日」より8日以内に行います。
賃料等条件
-
賃料
18.7万円 -
㎡・坪単価
約1879.9円/㎡ 約6216.7円/坪 -
共益費
----- -
敷金/償却
34万円/----- -
権利金
----- -
駐車場
敷地内(18,700円) -
その他条件
要お問い合わせ -
引渡日
相 談 -
備考
定期建物賃貸借:2028年3月31日まで
保証会社利用必須(初回保証料賃料の100%、更新料賃料の100%/年)
当ビル入居テナントと同業種は不可。
物件概要
-
種別
貸店舗事務所 -
面積(坪数)
99.47㎡(約30.08坪) -
構造/階数
鉄骨鉄筋造 9階建/2階 -
築年
1988年(昭和63年)5月 -
設備
要お問い合わせ -
ガス
都市ガスエリア -
用途地域
商業地域 -
取引形態
仲介 -
希望業種
要お問い合わせ
-
交通
地下鉄鶴舞線御器所駅歩2分/地下鉄鶴舞線川名駅歩13分/地下鉄鶴舞線荒畑駅歩12分 -
所在地
愛知県名古屋市昭和区御器所通3丁目
※用途地域により業種に制限があります。事前に確認が必要です。
周辺環境
ローソン80m / スギ薬局400m / マックスバリュ240m
- この物件情報をメールで送る
- この物件情報をLINEで送る
-
スマホで物件情報を見る
物件番号・取り扱い支店
- 物件番号
- 3300516-008

















_Y_001.webp)













2028年3月31日までの定期借家契約になります
地下鉄鶴舞線・桜通線の両線利用できる御器所駅まで徒歩2分の好立地。大通りに面した店舗です。