貸倉庫 愛知県名古屋市中区大須1丁目の物件情報
お気に入り登録
0人がお気に入り登録
| 賃料 共益費等 |
保証金/償却 権利金 |
最寄り駅 | 所在地 | 種別 | 面積 (坪数) |
築年数 | 引渡日 |
|---|---|---|---|---|---|---|---|
| 32万円 ----- |
128万円/----- ----- |
地下鉄鶴舞線大須観音駅歩5分 地下鉄東山線伏見駅歩14分 |
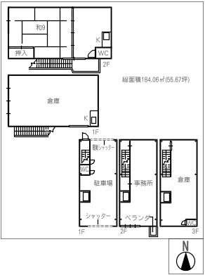
愛知県名古屋市中区大須1丁目 | 貸倉庫 | 184.06㎡ (約55.67坪) |
築38年 | 即 可 |
賃料32万円(共益費等 -----)
保証金128万円 償却----- 権利金----- 駐車場敷地内(家賃込)
愛知県名古屋市中区大須1丁目
地下鉄鶴舞線大須観音駅歩5分/地下鉄東山線伏見駅歩14分
この物件のおすすめポイント
- 駐車場あり
物件情報
情報更新日 : 2025/11/07 ※次回更新は記載の「情報更新日」より8日以内に行います。
賃料等条件
-
賃料
32万円 -
㎡・坪単価
約1738.5円/㎡ 約5748.1円/坪 -
共益費
----- -
保証金/償却
128万円/----- -
権利金
----- -
駐車場
敷地内(家賃込) -
その他条件
要お問い合わせ -
引渡日
即 可 -
備考
保証会社利用必須(初回保証料総賃料100%、更新保証料総賃料10%/年、振替手数料550円/月)
駐車は3台分込(サイズ確認要)
物件概要
-
種別
貸倉庫 -
面積(坪数)
184.06㎡(約55.67坪) -
構造/階数
鉄骨造 3階建/1階 -
築年
1987年(昭和62年)4月 -
設備
要お問い合わせ -
ガス
都市ガスエリア -
用途地域
商業地域 -
取引形態
仲介 -
希望業種
各種倉庫
-
交通
地下鉄鶴舞線大須観音駅歩5分/地下鉄東山線伏見駅歩14分 -
所在地
愛知県名古屋市中区大須1丁目
※用途地域により業種に制限があります。事前に確認が必要です。
- この物件情報をメールで送る
- この物件情報をLINEで送る
-
スマホで物件情報を見る
物件番号・取り扱い支店
- 物件番号
- 1504329-001





















