貸店舗事務所 西ノ割店舗・倉庫 ニッショー限定物件
お気に入り登録
0人がお気に入り登録
| 賃料 共益費等 |
保証金/償却 権利金 |
最寄り駅 | 所在地 | 種別 | 面積 (坪数) |
築年数 | 引渡日 |
|---|---|---|---|---|---|---|---|
| 27.5万円 ----- |
50万円/55万円 ----- |
地下鉄桜通線瑞穂区役所駅歩10分 名鉄名古屋本線神宮前駅歩20分 |
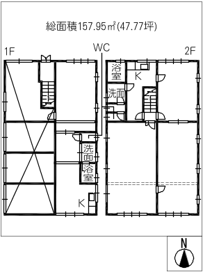
愛知県名古屋市瑞穂区西ノ割町1丁目 | 貸店舗事務所 | 157.95㎡ (約47.77坪) |
築32年 | 即 可 |
賃料27.5万円(共益費等 -----)
保証金50万円 償却55万円 権利金----- 駐車場敷地内(14,300円)
愛知県名古屋市瑞穂区西ノ割町1丁目
地下鉄桜通線瑞穂区役所駅歩10分/名鉄名古屋本線神宮前駅歩20分
この物件のおすすめポイント
- 角地
- 駐車場あり
物件情報
情報更新日 : 2025/12/09 ※次回更新は記載の「情報更新日」より8日以内に行います。
賃料等条件
-
賃料
27.5万円 -
㎡・坪単価
約1741.0円/㎡ 約5756.7円/坪 -
共益費
----- -
保証金/償却
50万円/55万円 -
権利金
----- -
駐車場
敷地内(14,300円) -
その他条件
要お問い合わせ -
引渡日
即 可 -
備考
保証会社利用必須(初回保証料総賃料の100%、更新保証料総賃料の10%/年)
物件概要
-
種別
貸店舗事務所 -
面積(坪数)
157.95㎡(約47.77坪) -
構造/階数
木造 2階建/2階 -
築年
1993年(平成5年)1月 -
設備
要お問い合わせ -
ガス
都市ガスエリア -
用途地域
第二種中高層住居専用地域 -
取引形態
仲介 -
希望業種
各種事務所、物品販売(飲食店・宗教関係不可)
- 物品販売
-
交通
地下鉄桜通線瑞穂区役所駅歩10分/名鉄名古屋本線神宮前駅歩20分 -
所在地
愛知県名古屋市瑞穂区西ノ割町1丁目
※用途地域により業種に制限があります。事前に確認が必要です。
周辺環境
高田小学校320m / ファミリーマート650m / バロー120m
- この物件情報をメールで送る
- この物件情報をLINEで送る
-
スマホで物件情報を見る
物件番号・取り扱い支店
- 物件番号
- 1304440-001



















地下鉄・名鉄ともに徒歩圏内です!
業種等はご相談になりますのでご連絡ください。