貸店舗 Verede桃山 店舗
お気に入り登録
0人がお気に入り登録
| 賃料 共益費等 |
保証金/償却 礼金 |
最寄り駅 | 所在地 | 種別 | 面積 (坪数) |
築年数 | 引渡日 |
|---|---|---|---|---|---|---|---|
| 107,470円 21,494円 |
586,200円/----- 107,470円 |
地下鉄桜通線鳴子北駅歩3分 地下鉄桜通線野並駅歩13分 地下鉄桜通線相生山駅歩13分 |
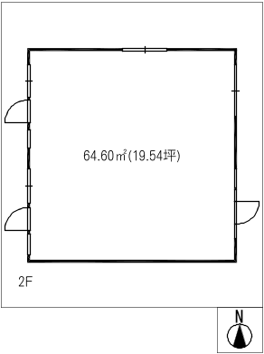
愛知県名古屋市緑区鳴子町3丁目 | 貸店舗 | 64.60㎡ (約19.54坪) |
築55年 | 即 可 |
賃料107,470円(共益費等 21,494円)
保証金586,200円 償却----- 礼金107,470円 駐車場敷地内(7,700円)
愛知県名古屋市緑区鳴子町3丁目
地下鉄桜通線鳴子北駅歩3分/地下鉄桜通線野並駅歩13分/地下鉄桜通線相生山駅歩13分
この物件のおすすめポイント
- 駐車場あり
物件情報
情報更新日 : 2025/12/06 ※次回更新は記載の「情報更新日」より8日以内に行います。
賃料等条件
-
賃料
107,470円 -
㎡・坪単価
約1663.6円/㎡ 約5500.0円/坪 -
共益費
21,494円 -
保証金/償却
586,200円/----- -
礼金
107,470円 -
駐車場
敷地内(7,700円) -
その他条件
要お問い合わせ -
引渡日
即 可 -
備考
定期建物賃貸借:契約期間10年間
保証会社利用必須(初回:保証人有(総賃料50%最低\20,000)・保証人無(総賃料100%最低\40,000)、更新料:総賃料20万円未満\20,000/年・総賃料20万円以上\40,000/年)
10年間の定期借家契約となります。
物件概要
-
種別
貸店舗 -
面積(坪数)
64.60㎡(約19.54坪) -
構造/階数
鉄筋造 5階建/2階 -
築年
1970年(昭和45年)5月 -
設備
要お問い合わせ -
ガス
都市ガスエリア -
用途地域
第二種住居地域 -
取引形態
仲介 -
希望業種
応相談
-
交通
地下鉄桜通線鳴子北駅歩3分/地下鉄桜通線野並駅歩13分/地下鉄桜通線相生山駅歩13分 -
所在地
愛知県名古屋市緑区鳴子町3丁目
※用途地域により業種に制限があります。事前に確認が必要です。
- この物件情報をメールで送る
- この物件情報をLINEで送る
-
スマホで物件情報を見る
物件番号・取り扱い支店
- 物件番号
- 0900201-002












鳴子北駅まで約3分の好立地!
業種や条件などはご相談ください。実際のお部屋の内覧も可能ですので是非ご予約をお待ちしております。